INTERIOR_1.jpg
KITCHEN.jpg
MAIN BEDROOM.jpg
BABY ROOM.jpg
NICHE.jpg
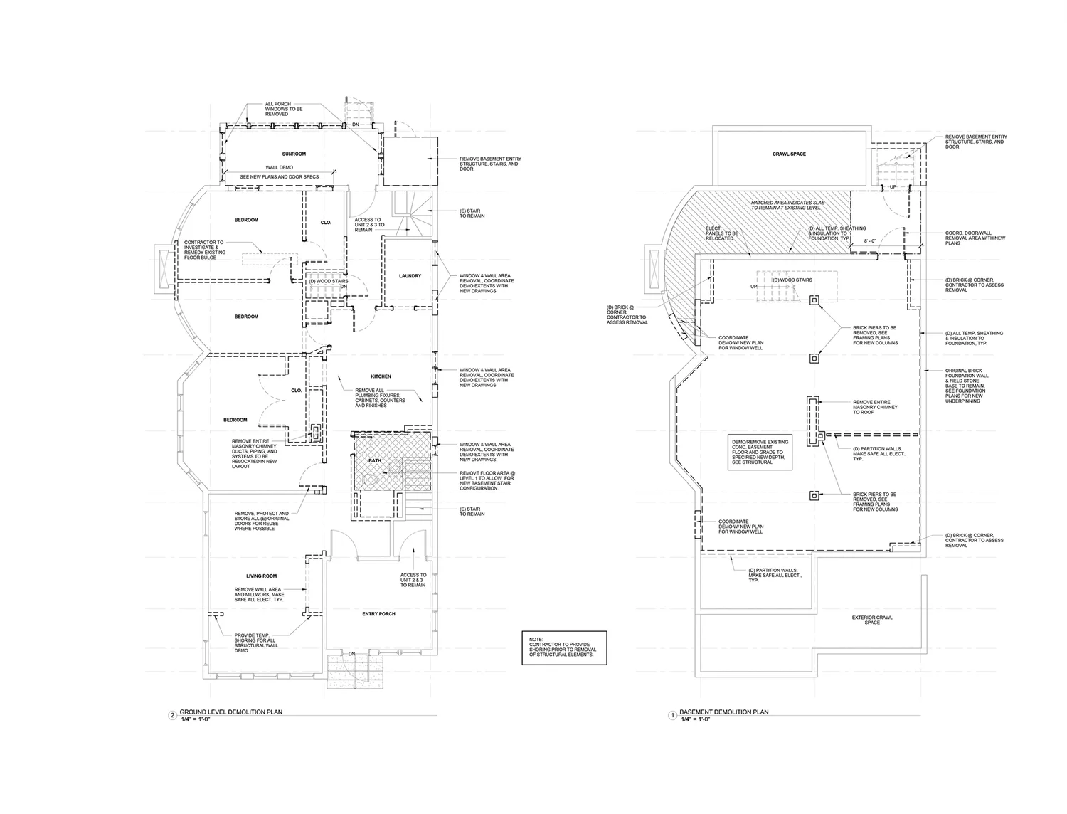
 Floor plans show extensive renovation of both first floor (left) and basement (right) with an open, connecting stair.
 The basement design calls for the excavation of nearly the entire space including new structural underpinning of the foundation. This will allow for a minimum of 8’ ceiling height in the finished space.
 Exterior elevations show minor modifications proposed for Unit 1.  Units 2 and 3 are to remain unchanged.
BASEMENT.jpg
WINDOW WELL.jpg
STAIR.jpg
 Concept sketches show the chain of living areas spilling out into the back yard at level 1 and connected at the basement level.
prev / next