Original stone house from 1874.
 Kitchen progress photo.
 Newly exposed stone wall and enlarged opening to dining room.
 Existing floor plans show the heavy, thick limestone walls.
 Proposed floor plans highlight two major additions proposed, kitchen and master bathroom.
 Master bath addition progress.
 Roof plan and axon views illustrate additions in 3D.
 Kitchen plan details and perspectives.
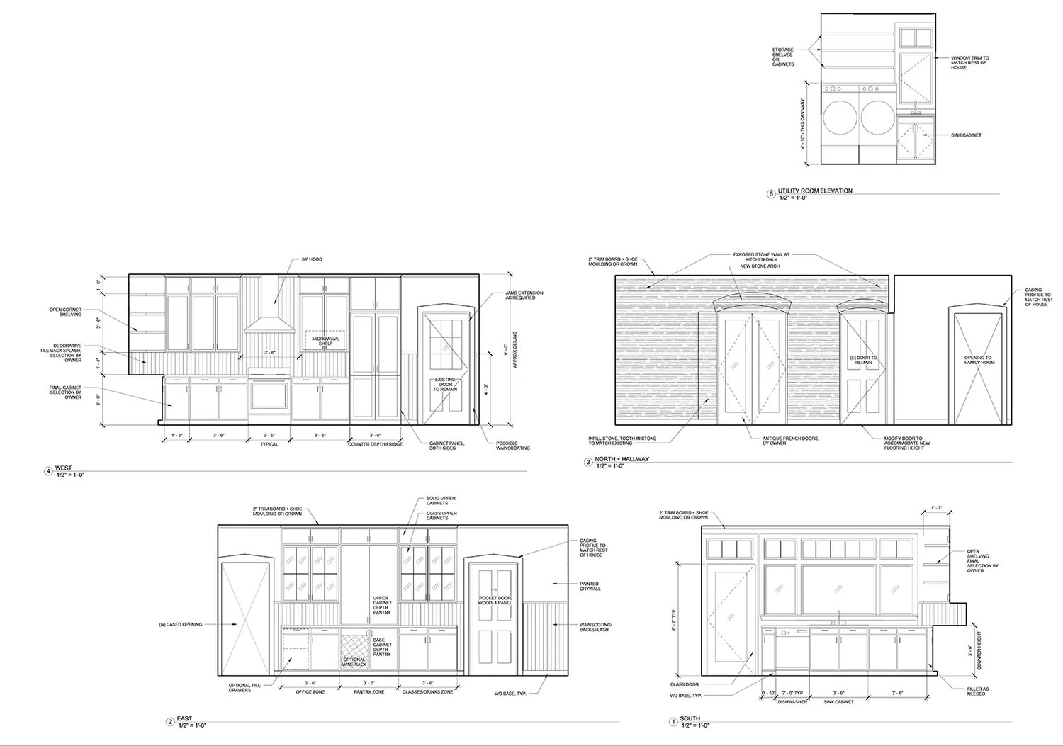
 Interior kitchen elevations were carefully composed to allow seamless connection with the historic house character.
 Kitchen construction progress - expanded view to garden and exposed stone wall.
 Project team charrette notes show how priorities were mapped at early stages.
 Project team charrette diagram illustrates how all kitchen expansion ideas were initially considered. Option B and D were chosen.
 Existing historic diagram shows the evolution of the house over the past 150 years.
 Hill country context and owners out for a hike.
 Historic photo. (Yep, that’s a guy on a horse with a shotgun.)
prev / next